接待进入鸿运国际网站,有任何意见或建议请致电或留言我们

产品中心products

永磁减速同步电机直驱单绳纠葛式提升机

宣布时间:2022-12-02泉源:矿井提升机点击:3053

永磁减速同步电机直驱单绳纠葛式提升机

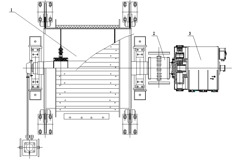
      为推进矿井提升机系统的智能化、数字化提升,扩大节能提升机的绿色供应,我公司研发了永磁减速同步电机直驱矿井提升机,其装置结构形式见下图。

       永磁减速同步电机的输出轴与矿井提升机主轴通过联轴器直联。该结构体积小、噪声小,传动精度高、功率密度大,性价比高,装置便当,维护简朴,节能效果显著。

       提升机配套永磁电机功率规模:200千瓦--3000千瓦。

image.png

1、提升机(可为单绳或多绳摩擦式)   

2、联轴器  

3、永磁减速同步电机



分享到:0 用手机看
#

拍下二维码,信息随身看

试试用微信扫一扫,
在你手机上继续寓目此页面。

地点:
河南省洛阳市洛新工业园区

电话

天下咨询热线:
13333881339 13525444887 13991260433

邮箱

邮箱:
wjm9985@sina.com

地点:河南省洛阳市洛新工业园区
乘车蹊径:驾车至洛新工业园区

#

天下24小时效劳热线13333881339 13525444887 13991260433

【网站地图】【sitemap】